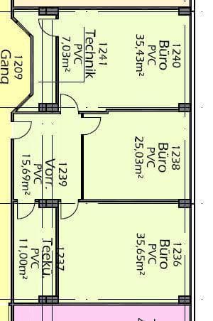
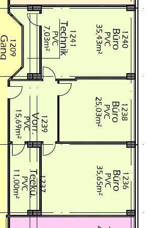
3‑Raum‑Büro mit zentralem Vorraum, Küche, Serverraum & Klimatisierung – 135,11 m im BIZ-Wels, TOP 1S17













Objektbeschreibung
Ein Büro, das Struktur und Komfort verbindet – 135,11 m² für moderne Arbeitswelten Dieses 3‑Raum‑Büro überzeugt durch seine klare Aufteilung und eine angenehme, professionelle Atmosphäre.
Der zentral gelegene Vorraum schafft einen einladenden ersten Eindruck und eignet sich perfekt als Empfangs‑ oder Kommunikationszone. Die drei Büroräume mit Teppichboden bieten ideale Voraussetzungen für konzentriertes Arbeiten, Meetings oder Teamorganisation.
Die kleine, ausgestattete Küche sorgt für Komfort im Arbeitsalltag, während der Serverraum mit PVC‑Boden funktionale Anforderungen optimal erfüllt. Klimatisierung und Außenjalousien garantieren ein angenehmes Raumklima – ideal für produktive Arbeitstage. Ein Büro, das Professionalität ausstrahlt und gleichzeitig ein angenehmes Umfeld für Mitarbeitende schafft. Miete € 1.634,83 + BK + HK Akonto € 493,15 + Stromakonto € 148,62 = Gesamt € 2.276,60 netto Das BIZ bietet wachstumsorientierten Klein- und Mittelunternehmen moderne und gleichzeitig kostengünstige Büro-, Lager- und Produktionsflächen – mitten im zentral gelegenen Wirtschaftspark Wels. Besonders für innovative Unternehmen sind Lage, Ausstattung, Konditionen und Services im BIZ ideal. Büros in verschiedenen Größen sind bereits ab 30 m² verfügbar. Zentral gelegen, modern ausgestattet und barrierefrei erreichbar – und das zu günstigen Mieten und Betriebskosten. Genau das, was Sie suchen! Betriebskosten setzen sich zusammen aus Betriebs- und Heizkostenakonto. Stromkostenakonto wird extra abgerechnet. BK € 3,65/m², Stromkosten € 1,10/m² Fotos Fischer Fotografie
Lage
Sonnige Lage, Stadtzentrum/Ortszentrum, Gewerbegebiet, Toplage, Gute Verkehrslage
Ausstattung
3 Büroräume mit Teppichboden Zentraler Vorraum Kleine ausgestattete Küche Serverraum mit PVC‑Boden Klimatisiert Außenjalousien
Grundrisse

