Top Mehrraumbüro mit Klima und Einbauküche BIZ Wels Top 1.S-05 provisionsfrei



















Objektbeschreibung
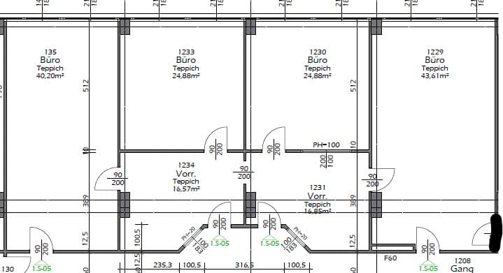
Großzügiges Mehrraumbüro mit Klimaanlage, Einbauküche & Glasfronten – 170,27 m² Dieses weitläufige Mehrraumbüro bietet auf 170,27 m² eine durchdachte Raumstruktur und ideale Voraussetzungen für moderne Arbeitswelten.
Die Einbauküche (ablösefrei) bildet das Herzstück des Büros und liegt zentral zwischen den einzelnen Räumen – perfekt für kurze Pausen, Teamkommunikation oder informelle Meetings. Die Fläche verfügt über Teppichboden in den Büroräumen sowie PVC‑Boden in den Funktionsbereichen, was Komfort und Pflegeleichtigkeit optimal kombiniert.
Dank Klimaanlage und Außenjalousien ist ein angenehmes Raumklima jederzeit gewährleistet.
Einige Räume verfügen über zusätzliche Zugänge direkt vom Gang, was flexible Nutzungsmöglichkeiten schafft. Die schönen Glasfronten lockern das Erscheinungsbild auf und sorgen für Transparenz und eine moderne, offene Atmosphäre. Ideal für Unternehmen, die Wert auf Struktur, Komfort und ein repräsentatives Arbeitsumfeld legen. Miete € 2.060,27 + BK/HK Akonto € 621,49 + Stromakonto € 187,30 = Gesamt € 2.869,06 netto Betriebskosten (€ 3,65/m²) setzen sich zusammen aus BK- und HK Akonto. Stromkostenakonto (€ 1,10/m²) wird extra abgerechnet. Das BIZ bietet wachstumsorientierten Klein- und Mittelunternehmen moderne und gleichzeitig kostengünstige Büro-, Lager- und Produktionsflächen – mitten im zentral gelegenen Wirtschaftspark Wels. Besonders für innovative Unternehmen sind Lage, Ausstattung, Konditionen und Services im BIZ ideal. Büros in verschiedenen Größen sind bereits ab 30 m² verfügbar. Zentral gelegen, modern ausgestattet und barrierefrei erreichbar – und das zu günstigen Mieten und Betriebskosten. Genau das, was Sie suchen!
Lage
Sonnige Lage, Stadtzentrum/Ortszentrum, Gewerbegebiet, Toplage, Gute Verkehrslage
Grundrisse

